今天跟大家分享一套南加州的户型案例。借用这个案例,跟大家分享一下我分析室内户型风水的思路。很多时候,买家会被房子精美的装修吸引,但装饰是可以改的,很多户型问题却非常难改变。而且这种问题往往不会在第一次接触房子时立刻发觉,更多是居住久了,才慢慢体现出来。
阴阳从采光开始

整个房子为东向的采光,日照时间本身比较短。 两个bedroom虽然有南窗,但现场能看到窗外围墙和较高的 hedge 把光线挡掉了,所以实际有效采光被削弱。除了 office 区域外,其余空间即使在白天也呈现出一种“偏暗”的状态。
从传统风水的角度,这属于一个很基础的阴阳失衡,阴盛阳衰。《阳宅爱众篇》写到“阳宅贵阳,贵明净” 明净就是讲空间需要足够的自然光,让阳气能够起来。 长期居住在自然光不足的环境中,常见影响包括睡眠质量下降、精神易疲惫,以及慢性健康问题。
这听起来像常识,但很多实际的案例说明大家会忽略这个问题。 我之前有位客户长期没精神、身体也有慢性疼痛,但检查不出明确病因。后来我们发现,她家的主要窗户外有一棵树,几年里越长越高,把大部分日照几乎都遮住了。她又长期在家做科研工作,几乎不出门晒太阳。在这样的环境里,身体很容易在不知不觉中一直处于“电量不足”的状态。
改善建议:
- 结构不动的前提下,用灯光系统主动补“环境光”;
- 同时入口与堂屋是宅气第一口气,玄关与客厅再用重点光把气提起来。
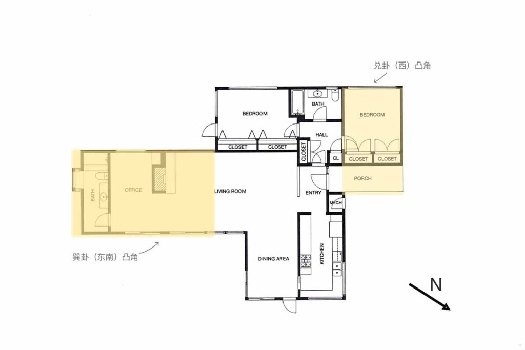
形法上巽卦的凸角

从形法上看,这个户型在西方兑位和东南巽位都有凸角,其中以东南巽位的凸角更明显。
巽卦本卦属木,在传统对应里,象征层面常与肝胆、毛发、神经系统相关。凸角本身带有“突、硬、顶、冲”的形态感,我通常会把它视为户型里的一个“压力点”。当这种凸角落在巽位时,现实里更常见的体现不是“立刻出事”,而是精神层面的压力更容易被放大:人会更敏感、更容易紧绷,长期下来容易感觉心累、烦躁,或者总有一种被推着走的感觉。
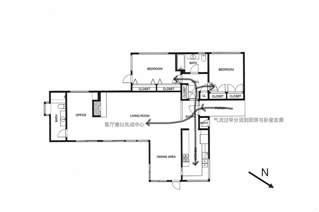
理气与动线——散气局与公私倒置

从理气去看,气进到房子里,理想状态是要先形成一个“圆满聚会”的格局。也就是说,入户之气应该先在门厅/客厅这个第一公共空间里停留一下,先“成局”,再往里分到厨房和卧室这些功能区。
但这套户型的问题在于:气还没到客厅,就已经被分走到厨房和卧室那边了。这在传统里更接近宅内五败中的散气局,结果就是客厅气场不足。现实里表现得很直白:家里不太“聚人”,成员更容易各回各房,或者更喜欢往外跑,而不是自然地在客厅停留。
另外还有一个干扰点:卫生间属水、厨房属火,水火同线,又正好冲到入户气口,对整体气场的影响会更明显。
改善上,如果不做结构改动,一个简单做法是:在玄关放一株健康的绿植,让它起到“水生木、木生火”的通关作用,去缓和入口处的水火牵制。
再从现代住宅功能的角度看,一个正常舒适的动线逻辑应该是 Entry → Living / Public Space → Bedroom Corridor。但这所房子一进门就能看到卧室区的门,私密性靠的不是空间本身的组织逻辑,而是靠关门来解决,本质上是公私倒置。
这套案例放在一起看,逻辑其实就很清楚了:采光偏暗,整体阴多阳少;坤位的凸角形成一个明显的“压力点”;再加上入户之气过早被分走,客厅很难真正成中心、成局。也正因为如此,我一直强调风水是一套综合的分析方法,不是抓住某一个点就能“一锤定音”。
后面的文章我会再展开讲“星法/时间周期”这一层,但前提还是一样:先把基础的东西看明白——采光、形体、以及气在室内的流动与停聚。

