Today I’m sharing a Southern California floor plan case study. Using this example, I want to share how I analyze FengShui in interior layouts. Many buyers can be distracted by beautiful renovations and staging. But finishes can be changed. Layout problems are much harder to fix. And these issues often don’t stand out the first time you see a home; they tend to show up after you’ve lived there for a while.
Yin–Yang Starts With Natural Light

The biggest issue here is daylight.This home depends mostly on east-facing light, which usually means a shorter sun window through the year. Two bedrooms do have south-facing windows on paper, but the exterior wall and tall hedges cut off a lot of usable sunlight. The office felt bright enough, but most of the home still felt dim even during the day.
In classical feng shui terms, this is a basic yin–yang imbalance: too much shade (yin) and not enough brightness (yang). Yang Zhai Ai Zhong Pian (阳宅爱众篇) puts it simply: a good home should be “bright and clear.” In practice, that means there needs to be enough daylight for yang energy to rise.
When a home stays low-light for long periods, people often notice patterns like low energy, a constant sense of fatigue, and slower recovery.
This may sound like common sense, but it’s something people often forget when they evaluate a home. I’ve seen this play out with clients too. One person had persistent low energy and chronic pain without a clear medical diagnosis. Later we discovered that a tree had grown over the years and was blocking most of the daylight from her main windows. She was also working from home in research and rarely spent time outdoors. In an environment like that, it’s easy for the body to feel constantly “undercharged” over time.
What to do (without changing the structure)
If you can’t change the windows or remove the outside blockage, you can still raise the “yang” inside the home:
- Add more lighting and lift the overall brightness. Treat lighting as a basic part of the home that you design on purpose.
- Brighten the entry and living area first. In feng shui, this is the home’s first qi mouth. If it feels dim here, the whole home tends to feel lower in energy.
Form Matters: A Strong Protruding Corner in Southeast (Xun)

In form-based feng shui (形法), this layout shows protruding corners in both the west (Dui) and the southeast (Xun).The Xun side is the most obvious.
Traditionally, Xun belongs to the wood element. On a symbolic level, it’s often linked with the liver and gallbladder, hair, and the nervous system. A protruding corner has a “jutting, hard, pushing” quality, so I treat it as a pressure point in the layout. When this kind of form lands in the Xun sector, it often shows up as mental pressure in real life—people may feel more easily stressed, emotionally sensitive, or “on edge” over time.
What to do
- If possible, move the office function away from this area and use it for a lower-use space instead.
- Avoid sharp decor or aggressive angular furniture here.
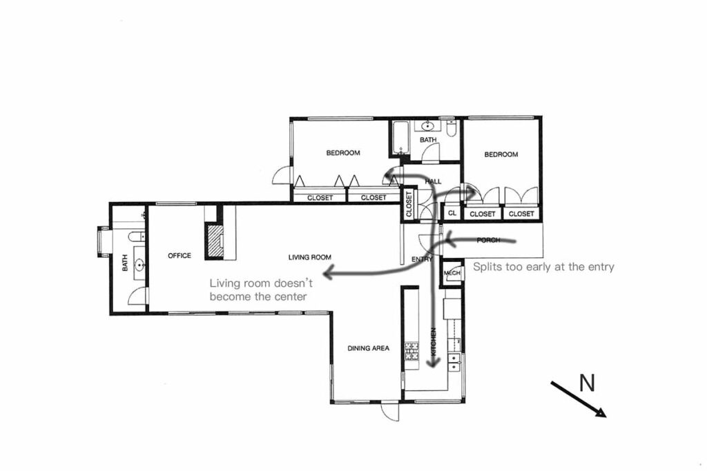
Qi Flow: The Entry Splits Too Early (A “Scattered Qi” Layout)

A home does not need a perfect floor plan, but it does need a clear center. In most livable layouts, the entry brings you into the first public space first. The foyer and living room act as the “first stop,” where the energy of the home gathers before it moves deeper into the kitchen and bedroom zones. This is also the logic behind a modern circulation sequence: Entry → Living/Public Space → Bedroom Corridor. In this plan, the flow breaks too early. Before the living room has a chance to function as the center, the entry already pulls energy toward the kitchen side and the bedroom side. In traditional feng shui language, this is close to what is described as a “scattered qi” pattern and is sometimes discussed under Zhai Nei Wu Bai (宅内五败), where the main gathering zone ends up underpowered.
What you see in daily life is very straightforward. The living room does not naturally become the place where people stay. Family members pass through it, but they do not linger. Over time, the home feels less like a shared space and more like a set of separate rooms.
There is also a secondary tension in this layout. The bathroom (water) and the kitchen (fire) sit in a relationship that interferes with the entry area, so the qi mouth is disturbed right at the start.
Without renovation, a simple adjustment is to place a healthy green plant near the entrance. In feng shui terms, it helps “bridge” the sequence of water nourishing wood, and wood feeding fire, which can soften the water–fire tension at the entran
When you put this case together, the logic becomes clear. Low light pulls the home toward yin, the Kun protrusion adds a pressure point, and the entry flow splits too early so the living room never really becomes the center. That’s also why I see feng shui as a framework, not a one-point verdict. In future posts, I’ll talk more about timing-based layers (星法), but only after the fundamentals of light, form, and flow are in place.

